Info Progetto
Architetto: Davide Marchetti
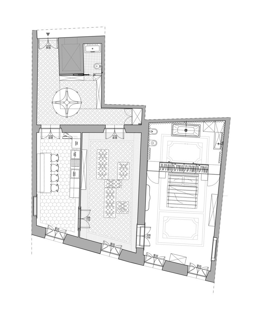
Progetto: Appartamento nel rione Regola
Luogo: Roma, Italia
Area: 130 m²
Anno: 2019
Categoria: Appartamento
Immagini © Matteo Rossi
L’appartamento si trova nel centro storico di Roma, nel Rione Regola, a pochi passi da Palazzo Farnese e Piazza Navona. Con un’area di circa 120 metri quadrati, lo spazio aveva caratteristiche non più originali a causa delle numerose modifiche apportate alla disposizione delle pareti interne negli ultimi 150 anni. Il progetto si è quindi concentrato sul restauro e la ristrutturazione dell’appartamento, che in precedenza era utilizzato come ufficio, da trasformare in residenza privata.
La prima necessità era quella di riadattare gli spazi irregolari e disomogenei, inadatti all’uso futuro previsto, seguendo le richieste fatte dal proprietario per ripristinare l’antico layout planimetrico ma allo stesso tempo dando uno sguardo contemporaneo alla location. Tutto questo è stato realizzato attraverso una meticolosa ricerca e riscoperta dei segni del tempo, come i soffitti e le decorazioni murali del XVIII-XIX secolo, e attraverso l’inserimento di elementi architettonici e di arredo per creare un nuovo dialogo con il passato.
Abbiamo quindi cercato di massimizzare l’orientamento verso le sorgenti di luce naturale, creando uno spazio il più aperto possibile e orientato verso le grandi aperture delle finestre. Il progetto di illuminazione artificiale è stato pensato anche per valorizzare la storia dell’edificio e le opere d’arte di famiglia che il proprietario ha voluto esporre.
Per quanto riguarda i materiali, abbiamo deciso di guardare alla tradizione romana (le pareti in travertino) e di restaurare il patrimonio storico del luogo (il pavimento veneziano e il Marmorino romano), ma utilizzando un linguaggio estetico innovativo e non convenzionale, che esalta la combinazione con il moderno, con particolare attenzione ai dettagli.
ALTRO
Produttori: Viabizzuno, Artigiana Arredamenti, Cooper Colours, IT’S STONE, Luca Mezzini pavimenti, OTTONERIA D’ARTE TOZZI, Robert McNeel & Associates, Zazzeri
Testi © www.davidemarchetti.it
