Info Progetto
Architetto: Club Marginal Architekten
Progetto: Märkische Heide
Luogo: Foresta della Sprea, Germania
Area: 230 m²
Anno: 2021
Categoria: Residenza
Immagini © Diana Sophie Fügener
Il progetto dello studio Club Marginal Architekten prevede la conversione di una casa colonica in una residenza per il fine settimana per una famiglia di quattro persone.
La casa costruita intorno al 1914 in una piccola fattoria nella Foresta della Sprea, a circa 80 km a sud di Berlino, è stata sottoposta a una revisione generale. Oltre alle finestre e al tetto, è stata rinnovata l’intera tecnologia dell’edificio. Il seminterrato ora funge da livello di installazione.
Al piano terra, due ambienti esistenti sono stati uniti per formare una grande cucina-soggiorno, che viene fornita di luce diurna aggiuntiva attraverso un pozzo di luce dal piano superiore. Le due camere da letto sono riservate ai due bambini o agli ospiti della famiglia.
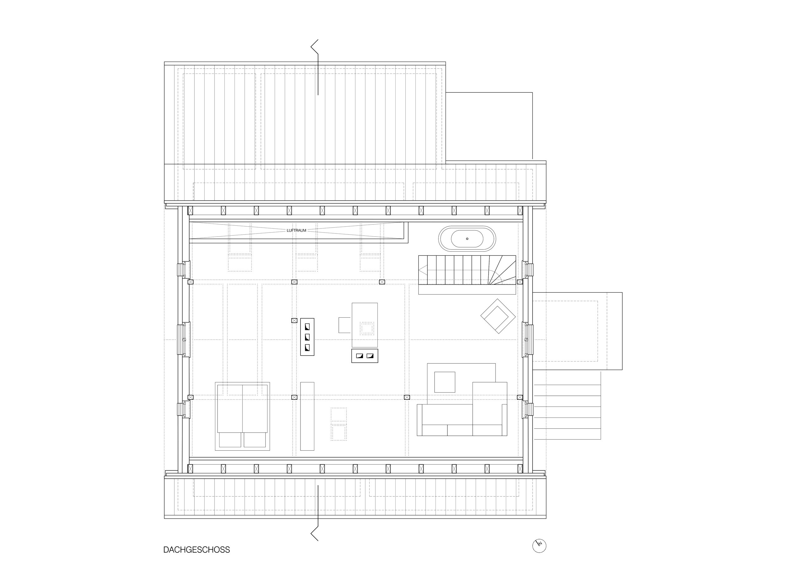
La demolizione di tutti gli infissi del sottotetto ha portato a un unico spazio abitativo coerente che può essere utilizzato in modo flessibile. I due camini freestanding ora dividono l’open space in diverse aree, come il soggiorno, l’ufficio, l’area giochi e la camera matrimoniale.
I pavimenti sono in linoleum scuro al piano terra e in pino cembro massiccio in alto. Sulla veranda è stata realizzata anche una piccola bottega di ceramica, prolungamento antistante della casa sul lato del cortile.
Testi © www.clubmarginal.com
